Recueil de dessins, croquis de design et plans d’aménagement

Catégorie : Design et conceptualisation   |   Lieu :

Voici un recueil sommaire de dessins, croquis de design et plans d’aménagement paysager « signature » préparés par Denis Massie, architecte paysagiste senior, et ce dans le cadre d’une carrière s’échelonnant sur quatre décennies (1985 – 2025).

Figure n° 1 : Illustration préparée à la main levée pour un client résidentiel, Gatineau, Québec
Figure n° 2 : Illustration préparée à la main levée pour un client résidentiel, Gatineau, Québec
Figure n° 3 : Illustration préparée à la main levée pour un client résidentiel, Gatineau, Québec
Figure n° 4 : Esquisse de présentation pour le parc aquatique « Calypso », Limoges, Ontario.
Figure n° 5 : Esquisse de présentation d’un concept d’aménagement conçu pour un site à vocation institutionnelle
Figure n° 6 : Esquisse de présentation préparée dans le cadre du projet « Place des pionniers », Hawkesbury, Ontario
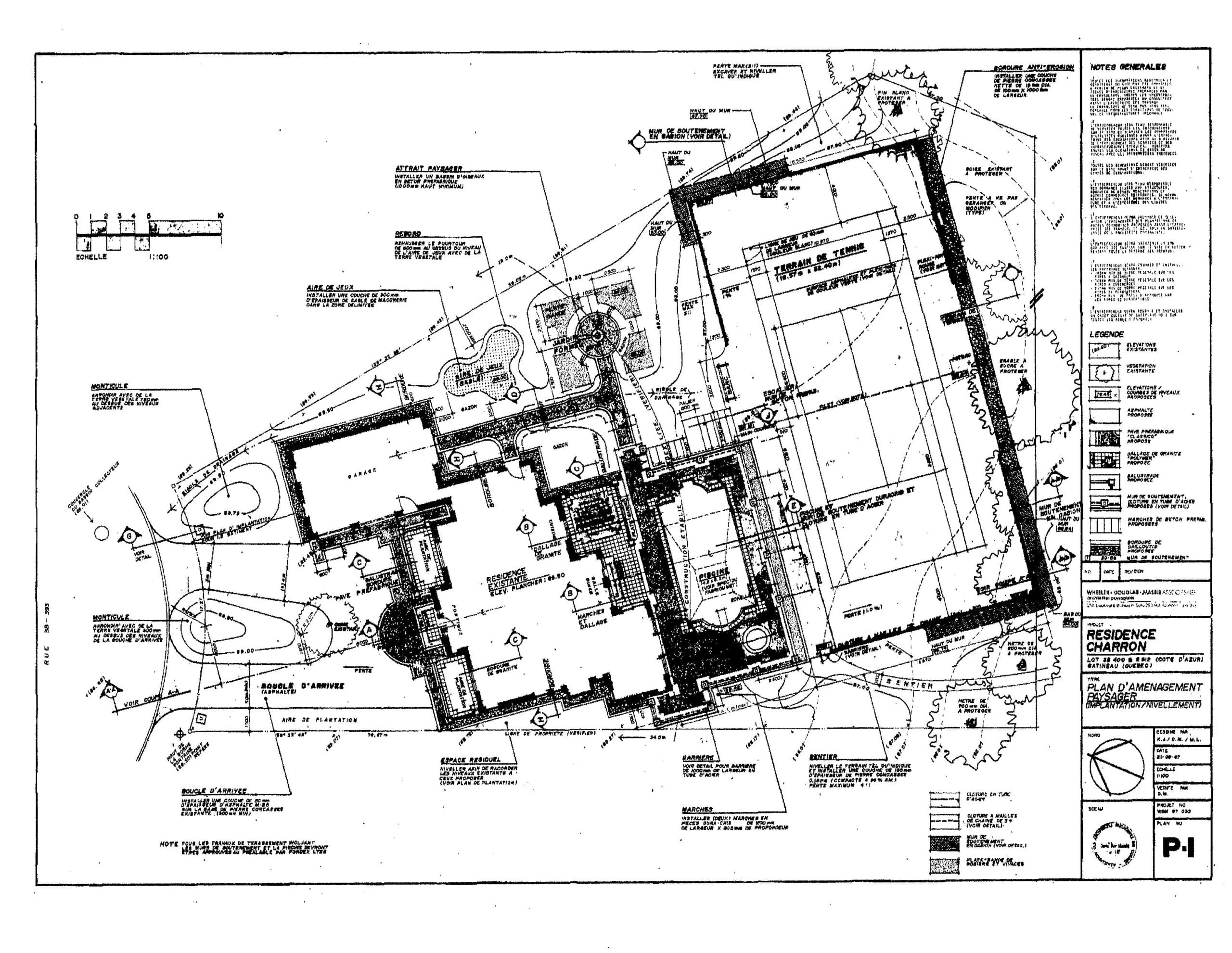
Figure n° 7 : Plan d’aménagement pour propriété résidentielle, Gatineau, Québec
Figure n° 8 : Extrait du plan conceptuel d’aménagement pour le parc municipal de Bowman, QC
Figure n° 9 : Diagramme de design pour un parc municipal, Bowman, Québec
Figure n° 10 : Diagramme analytique préparé pour le parc municipal de Bowman, Québec
Figure n° 11 : Croquis d’ambiance illustrant le concept d’aménagement du parc SiskIn, Low, QC
Figure n° 12 : Croquis d’ambiance illustrant une structure en bois et une sculpture à l’arrière-plan
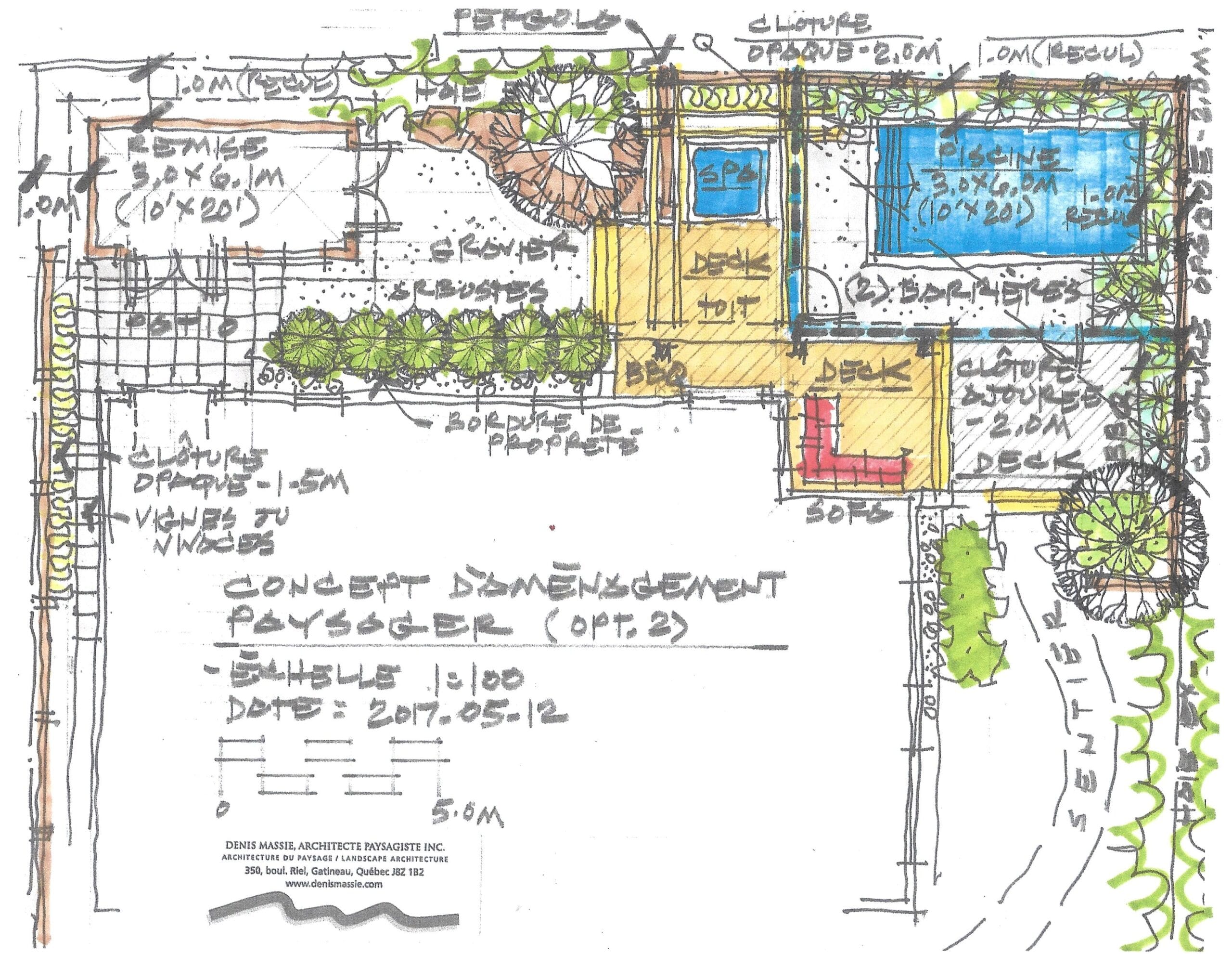
Figure n° 13 : Exemple d’un concept d’aménagement préliminaire fait à la main levée
Figure n° 14 : Exemple d’un concept d’aménagement préliminaire fait à la main levée
Figure n° 15 : Illustration conceptuelle fait à la main levée, GAO / OAG.
Figure n° 16 : Plan d’aménagement pour l’ensemble du site de l’GAO / OAG, Ottawa, ON
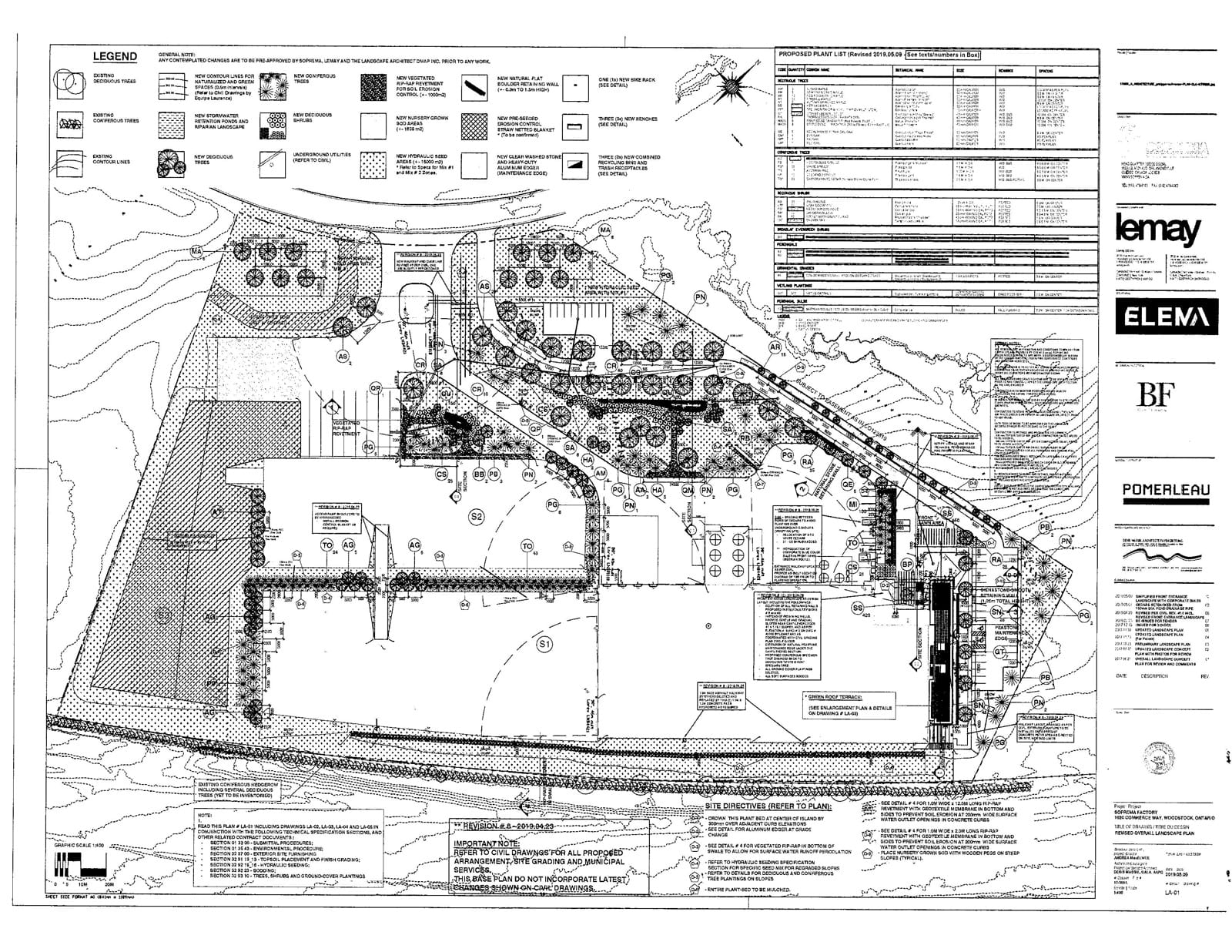
Figure n° 17 : Plan d’aménagement paysager écologique pour un site industriel, Woodstock, ON
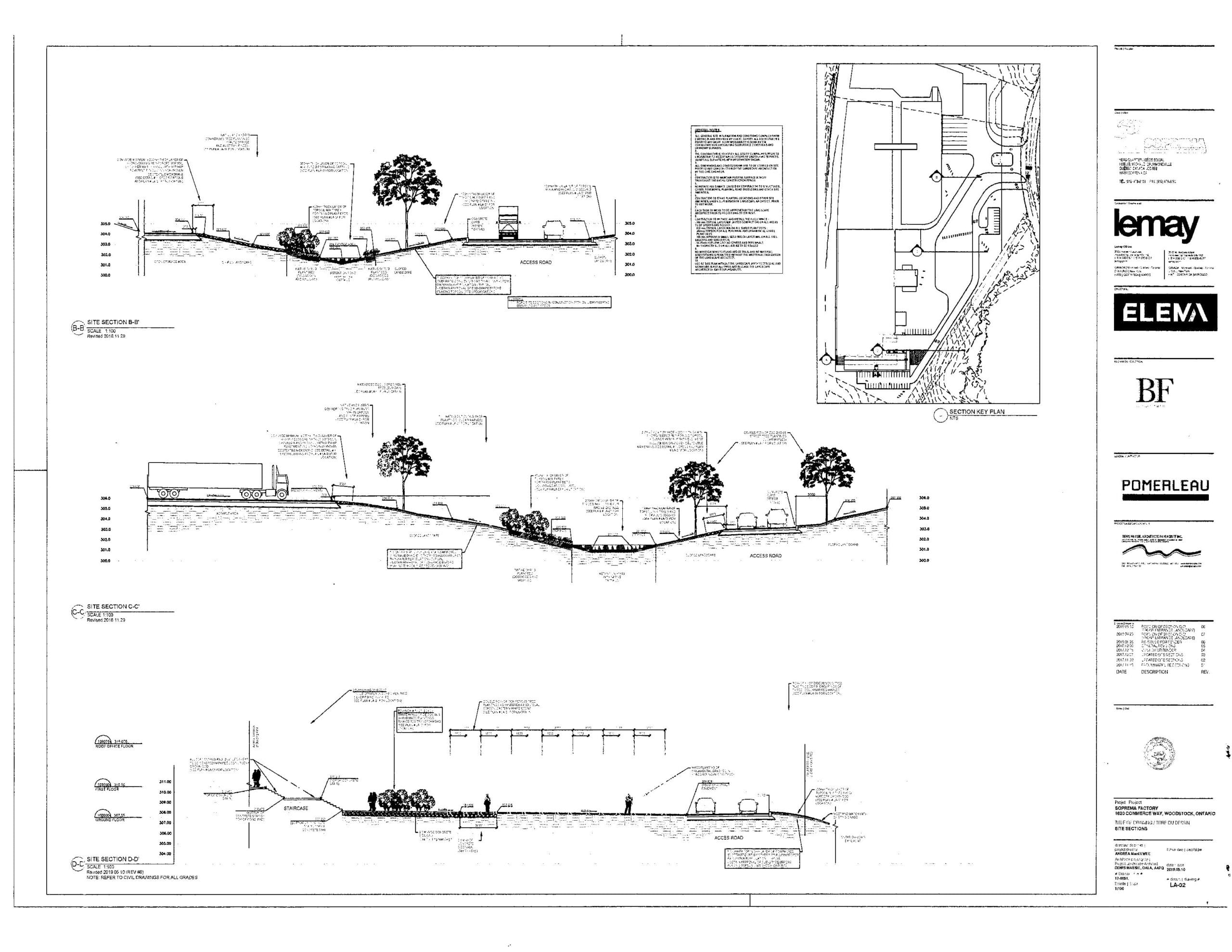
Figure n° 18 : Coupes descriptives pour l’aménagement d’un site industriel, Woodstock, ON
Figure n° 19 : Plan et coupe d’un toit vert sur un bâtiment industriel, Woodstock, ON
Figure n° 20 : Détails d’aménagement préparés pour un site industriel, Woodstock, ON